GREYKO air 30 kW

 

 

GREYKO air 50, 70 ja 100 kW

 

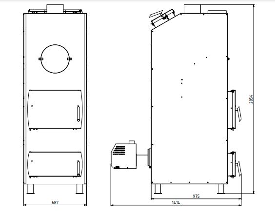
GREYKO õhkkütte pelletikatlad